Wolnostojąca willa Ref. BKAP9902

Konia

€867,000 Plus VAT
Konia Paphos
Wolnostojąca willa Nieruchomość Off-Plan
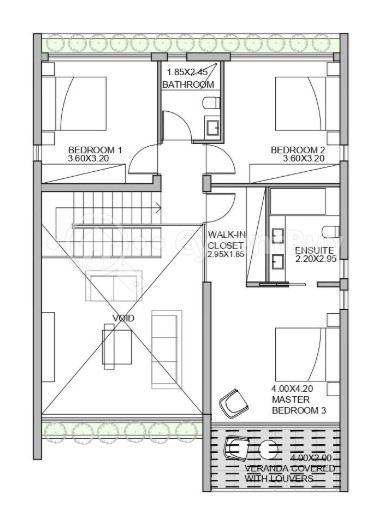
3 Sypialnie 3 Łazienki
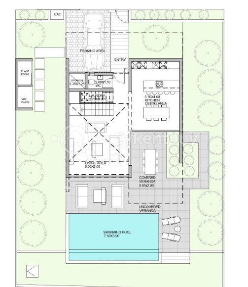
182m² Zabudowa
Basen Prywatny
Parking Zadaszony
Centralne ogrzewanie Podłogowe
Efektywność energetyczna Klasa A
ZAPYTANIE O NIERUCHOMOŚĆ

Przygotuj się na zachwyt tym wspaniałym domem, który charakteryzuje się wysokiej jakości wykończeniami, naturalnymi materiałami i przestronnymi, otwartymi układami.

Dom oferuje przestronną kuchnię oraz oddzielny salon, zapewniając mnóstwo miejsca zarówno do przyjmowania gości, jak i relaksu. Dodatkowo, dedykowana pralnia zwiększa wygodę codziennych obowiązków.

Wyjdź na zewnątrz i zachwyć się zapierającym dech w piersiach śródziemnomorskim ogrodem, w którym znajduje się lśniący basen.

Wewnątrz znajdziesz przestronne sypialnie, w tym główną sypialnię z prywatną łazienką i garderobą, zapewniającą luksusowy komfort i prywatność.

Basen - Prywatny
Centralne ogrzewanie - Podłogowe
Efektywność energetyczna - Klasa A
Lotnisko: 15 min jazdy
Miasto: 10 min jazdy
Oddzielna kuchnia
Ogród
Parking - Zadaszony
Plaża: 10 min jazdy
Plus VAT
Pole golfowe: 10 min jazdy
Schowek
Nie znalazłeś, czego szukałeś?
TA STRONA UŻYWA PLIKÓW COOKIES
Używamy plików cookies, aby zapewnić niezbędną funkcjonalność i najlepsze doświadczeniE na naszej stronie internetowej. Kontynuuj, jeśli zgadzasz się na otrzymywanie wszystkich plików cookies na tej stronie. Przeczytaj naszą Politykę Cookies.